Musicians’ House

Why build more when you can enhance what already exists? In a culture that values resource consciousness, this is an essential question to ask. With this mindset, we transformed a modest 1960s terraced house into a bright, welcoming family home.
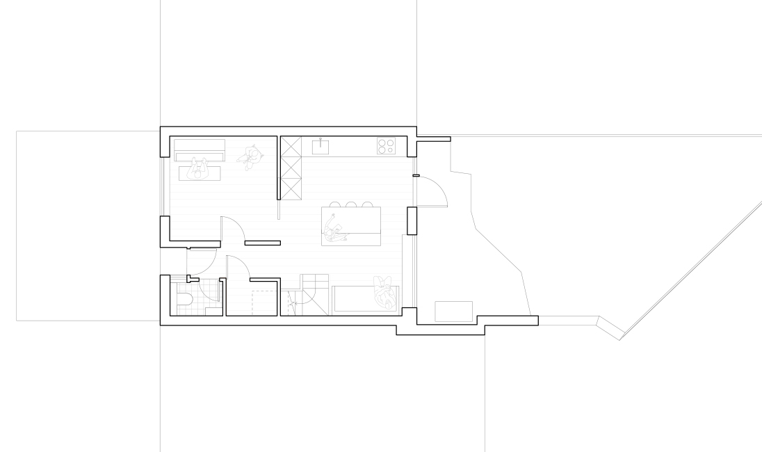
The owners, both professional musicians, needed a home that could frame family life while also providing space for music rehearsals and lessons. Removing unnecessary corridors and opening the plan was central to creating rooms that feel generous, flexible, and fit for their lifestyle.


Openness was not only about function, but also about light. Today, the moment you enter, your gaze is drawn through the home to the lush green garden beyond, illuminated by sunlight pouring through an oversized new window. What was once a long, dark corridor now flows seamlessly into the main family room, where the kitchen and dining areas sit. The enlarged space allows for a more natural furniture arrangement and a newly integrated staircase, connecting the levels in an entirely fresh way.
The entire house has been finished with breathable lime plaster—an elegant and functional material that requires no further painting. Beyond its appearance, lime plaster naturally regulates humidity and temperature, creating a healthier indoor environment. By inhibiting mould and bacteria growth and absorbing airborne pollutants, it actively contributes to cleaner air and long-term wellbeing.


A central chimney stack, once a heavy obstruction, was removed to unlock new possibilities. This allowed the front room to connect with the kitchen through a large sliding door. The space now serves flexibly—intimate enough for music lessons, yet able to expand and merge with family life when the doors are open.
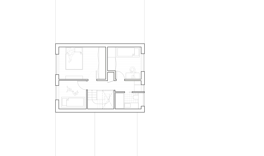
Upstairs, the removal of the chimney enabled a more efficient layout. Larger bedrooms, a reconfigured bathroom, and a new utility space bring both comfort and practicality to the upper floor.


To introduce a sense of drama and verticality, the ceiling above the stair was opened, drawing the eye upwards to a new rooflight positioned eight metres overhead. This striking gesture floods the stairwell with natural light and transforms it into a dynamic focal point.
The entire house is now powered by an air-source heat pump and underfloor heating. Freed from fossil fuels and fully removed from the gas grid, the home embodies a sustainable, forward-looking approach to modern living.












