House of Mirrors

The way we live has evolved—and our homes must evolve with us. By blending functionality with elegant minimalism, this four-storey maisonette was reimagined and given a new life.
Over the years, houses accumulate countless small alterations that obscure their true potential. Layers of changes build up, often resulting in compromised layouts and subpar living experiences. We uncovered this hidden potential by returning to first principles—drawing, rethinking, and reimagining. From these insights, we performed precise and purposeful “house surgery.”

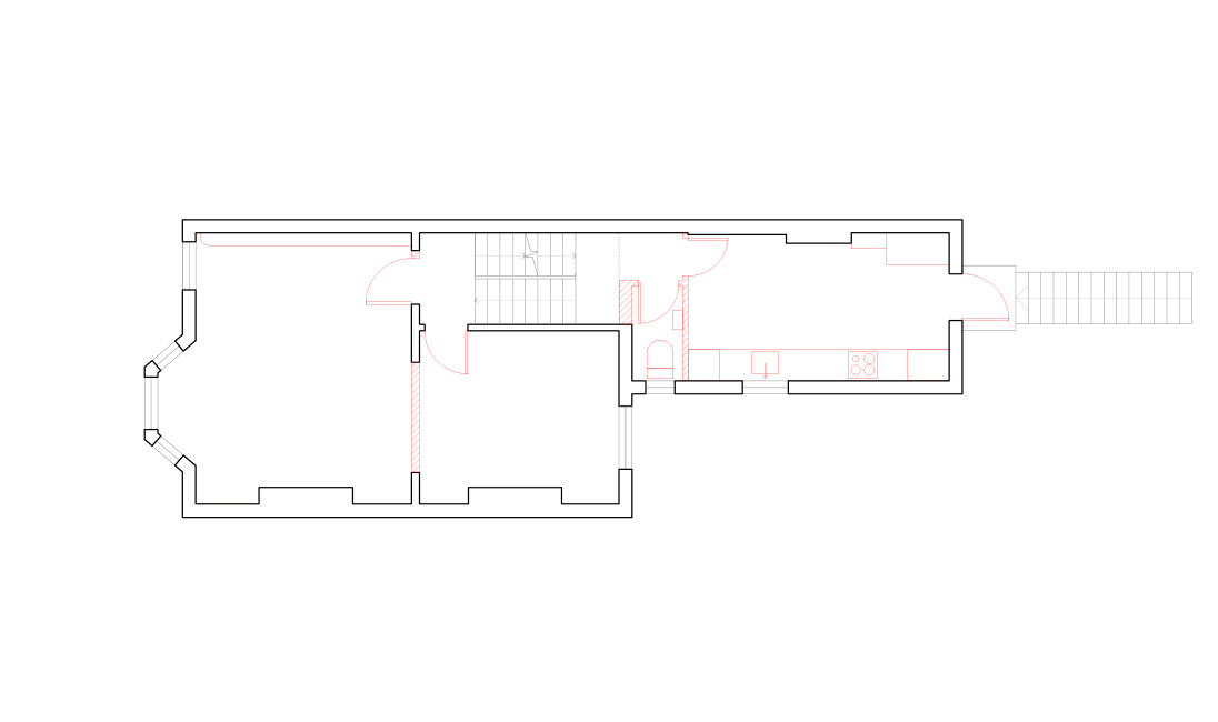
The rear outrigger posed the greatest challenge in the existing plan. On entering, there was no real sense of arrival, no space that welcomed you home. It also contained the kitchen, which was disconnected from the rest of the house and provided only limited dining space.
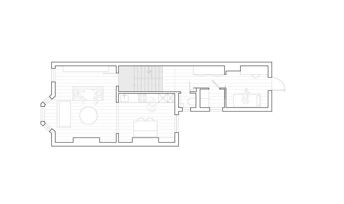
This area was completely transformed. It now accommodates a collection of essential auxiliary spaces: a WC, utility room, wardrobes, and a study/guest bedroom. To enhance the sense of openness, one wall was clad floor-to-ceiling with mirror, reflecting the warmth of a bespoke oak wardrobe opposite.




The kitchen was relocated to the first floor, where a new opening in the spine wall created a tall, light-filled space that brings kitchen, dining, and living together. Finishes were carefully considered, forming a pared-back palette that unifies the bespoke kitchen, fitted furniture, and shelving. South-facing, the kitchen glows with natural light, its brightness amplified by a mirrored wall that ties together the stainless-steel worktop and the soft canvas-grey tones of the surrounding elements.


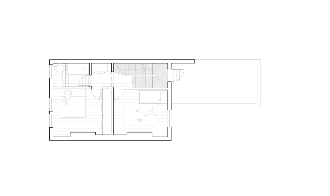
Another precise intervention was the reconfiguration of the second-floor hallway. Originally narrow and cramped, it now feels generous and inviting thanks to taller, wider openings. A new linen cupboard and shelving bring both practicality and visual interest to the space.

The main bedroom continues the theme of functional elegance with bespoke oak and rattan wardrobes and shelving, balancing natural warmth with refined simplicity.
Throughout, the property has been upgraded and renewed, with improvements to electrical systems, plumbing, heating, and plasterwork—ensuring the home not only looks transformed but also functions as it should for a more effortless contemporary living.

















