Flexibility in Architecture

One of the key advantages of hiring a professional to do your design is their ability to design in flexibility. This is crucial for addressing the pressing challenges of high land costs and environmental breakdown. By making sure adaptable design principles are understood and followed, we can create efficient, multifunctional spaces that has the potential to cater to a variety of needs, both present and future, while minimising resource use.
Overlapping Use
Living in London is a great example of the problem of cost. Most people would love to have more space, but the high pressure on the available properties mean that most of us have to compromise on size. On average, one square meter in London costs around £7,000. By these measures a normal corridor can cost £40,000. We therefore need to make sure that no space is wasted and where possible, we need to find ways to have overlapping use of the same space. Multifunctional space is therefore one of the key aspects to design flexibility into your home and make the most out of your space.
One approach to achieving flexibility is the incorporation of movable partitions instead of traditional walls and doors. For instance, in an apartment in Belsize Park, we designed folding partitions that allow for dynamic reconfiguration of spaces. When fully opened, the main living area nearly doubles in size, enhancing natural light and providing expansive views in both directions. But sometimes a more private or intimate organisation is more favourable. A guest might stay over and the study nook becomes a private guest bedroom. Or, a dinner party is happening and the bedroom remains shut, whilst the study becomes a place for a more intimate private conversation.


Adaptability can be incorporated into the furniture as well. A fold away bed can become part of a wardrobe, or a desk can fold out of the bookshelf and fold back in again when not in use. Or how about a built up floor hiding a kings size bed beneath a hatch?
Flexibility with overlapping use can also be achieved without moving elements. For example, a corridor can usually be used for only one thing – to walk between other rooms. But with careful consideration to the layout of the spaces in the house, a corridors can be part of adjoining spaces. Overlapping the corridor with the dining room means more potential guests at a dinner party. Or a corridor can be combined with a utility cupboard housing washing machine and tumble dryer, without the need for a separate room.
Adapt over Time
Beyond immediate functionality, we believe flexible design is critical for ensuring the longevity of buildings. Environmental sustainability requires more than meeting insulation and airtightness standards; buildings must be designed to remain useful over time. A well-designed house should be able to evolve alongside its occupants’ changing needs, and to be able to adapt to future occupants.


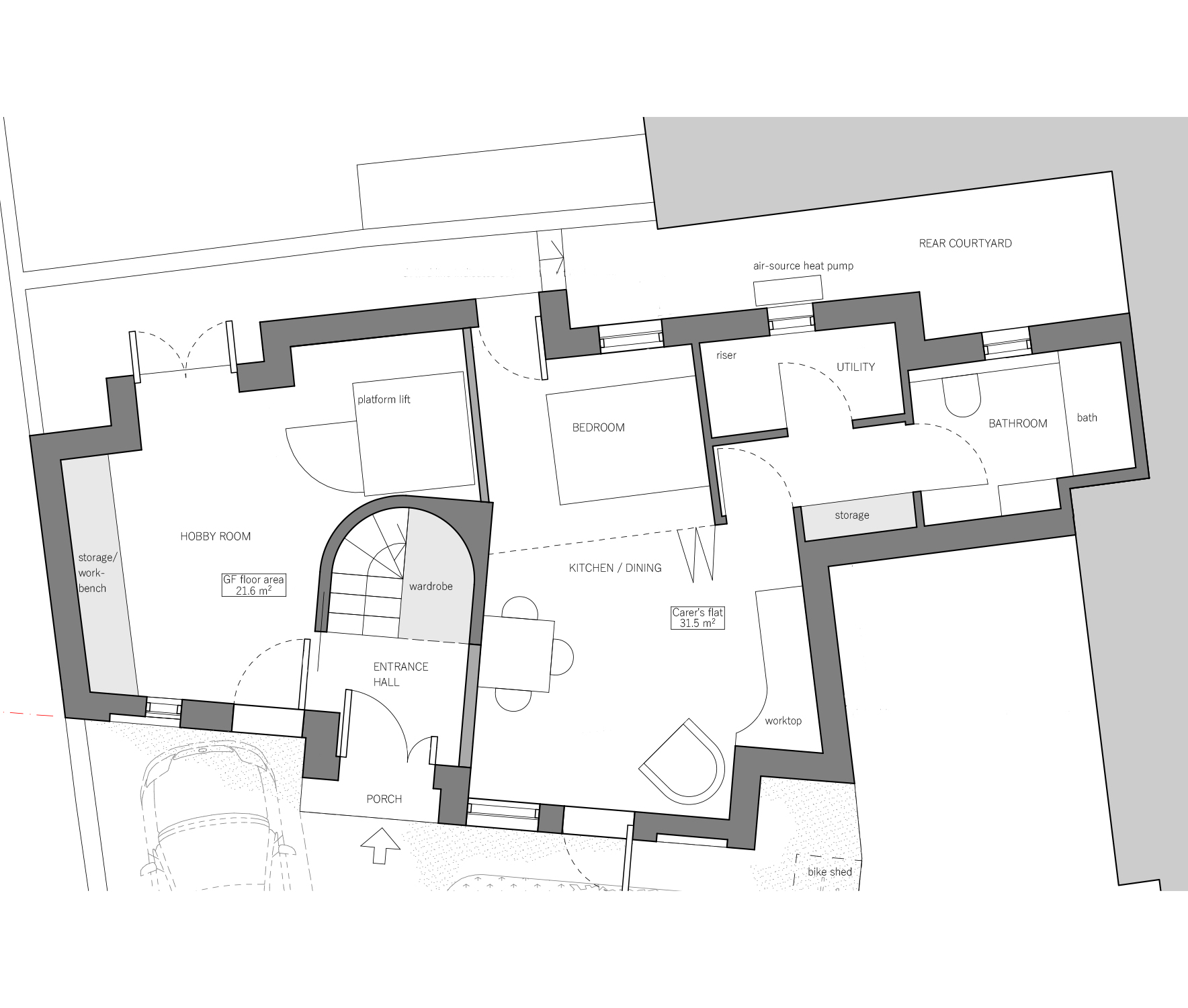
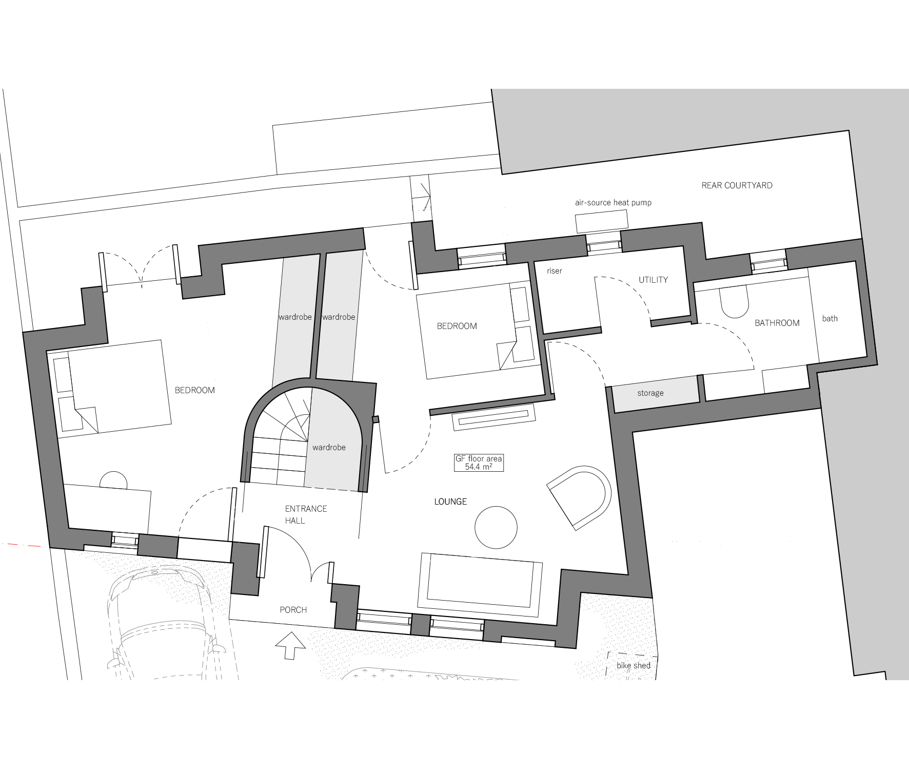
For example, in this home we recently designed for a single resident, we have made sure that certain critical elements allows for easy modifications in the future.

A space has been allocated for a future potential platform lift, should mobility at some point become a problem when living in this three storey house. The platform lift has been situated so that all the other spaces will still be useable.
The ground floor has been organised so that parts of it can be used as a separate flat for a live-in carer, should the need arise in the future.

Incorporating the needs of potential future occupants is also important. With a few modest interventions, the house can transform from its one-bedroom layout to a four-bedroom configuration, which would be suitable for a larger family. This, of course, makes it useful to a much greater pool of people, which should significantly increases the building’s long-term relevancy.
The building also has spacious service voids in risers and in the floor slab, to make sure that it will be easy to upgrade services as technology inevitably advances. We don’t know exactly what future buildings may need, but there is a clear trend were consistently more space needs to be allocated for ductwork, cabling etc.

Flexibility means useful
Making sure that the property remains and useable and therefore desirable, reduces the likelihood of demolition and unnecessary reconstruction. This in turn supports environmental sustainability by minimising material waste and resource consumption, which is why we consider flexibility in design so important. By focusing on adaptable layouts and multifunctional spaces, we can create buildings that make efficient use of limited land, reduce carbon footprints, and remain valuable for generations. The ability to modify spaces over time ensures that buildings continue to meet the evolving needs of their occupants. We are therefore committed to designing spaces that are also practical, sustainable, and adaptable for the future.
In addition to being useful, a building should be aesthetically pleasing. Just as we take care of the things we need, we take care of the things we find beautiful. we are therefore committed to designing spaces that are also practical, sustainable, adaptable and wonderful.





