Low-Energy Family Home

Maximising space is about more than square footage. It’s about creating flow. This is how we turned an aged semi-detached house into a contemporary low-energy home for a young family to grow into.


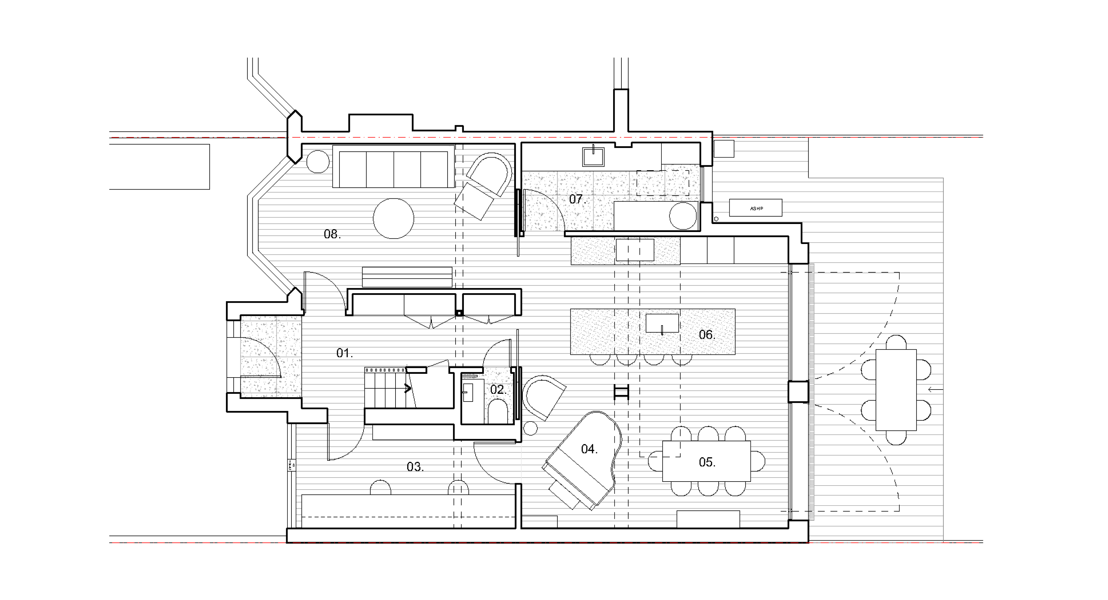
Once dark and disconnected, the ground floor is now open and bright, with a view stretching from the front door straight through to the garden. A figure-of-eight flow creates fluidity between spaces, while new sliding doors improve transitions and bring in natural light




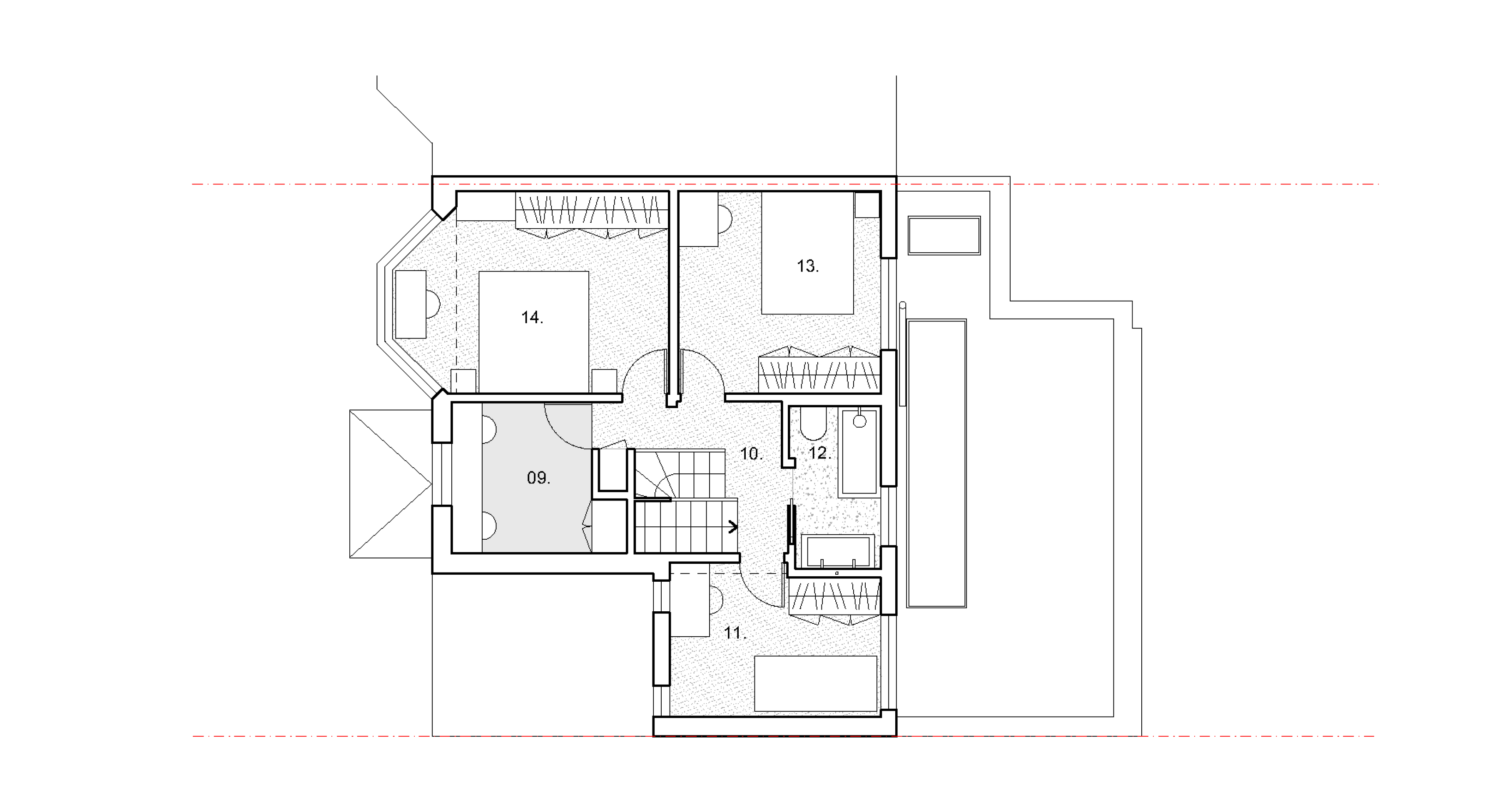
The kitchen is now the central hub of family life, from cooking to homework and socialising. A new air source heat pump powers the home, ensuring energy efficiency. Cork and zinc materials bring both resilience and natural beauty, while rubber flooring upstairs provides a softer, more comfortable surface underfoot.

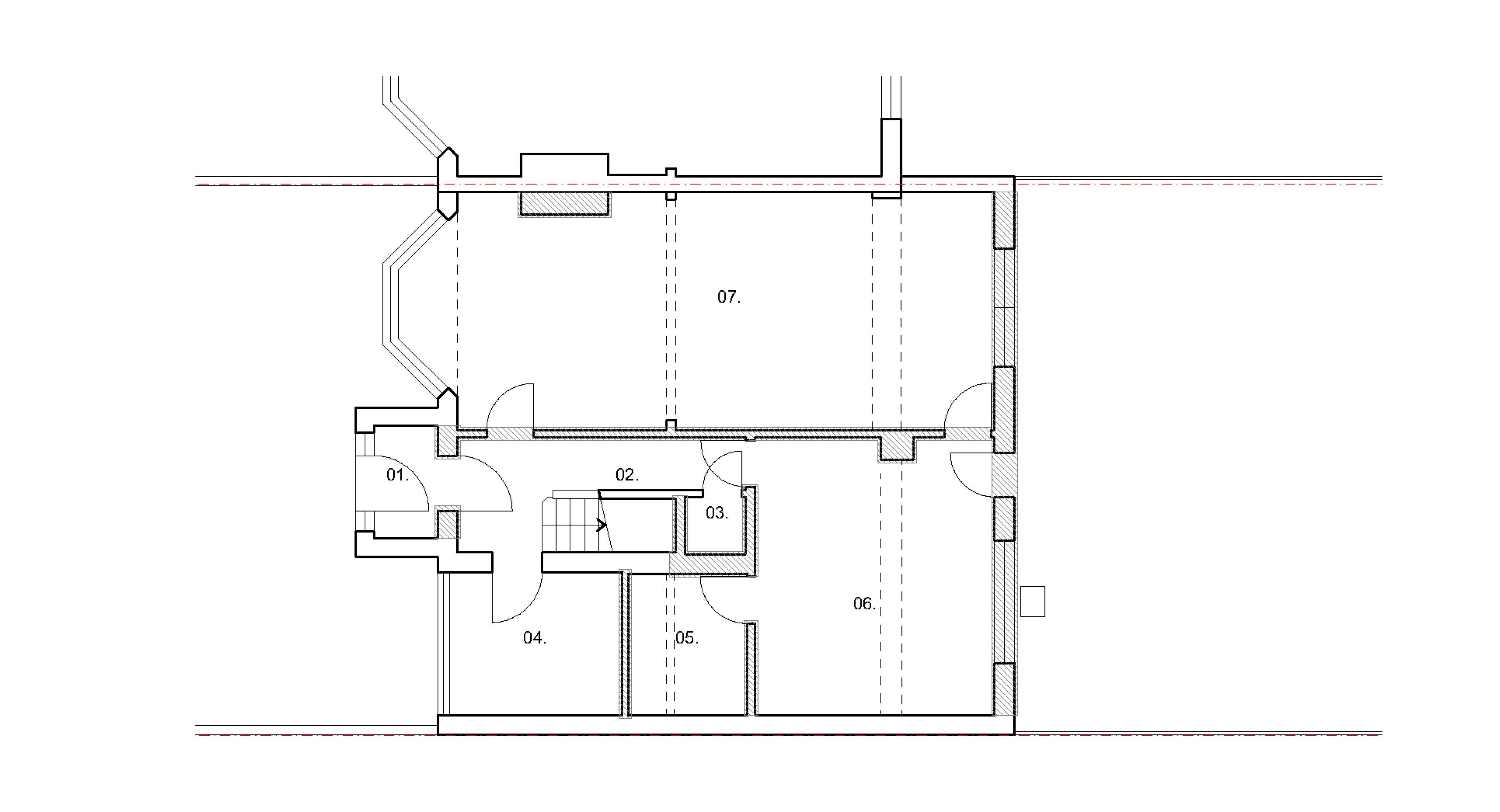
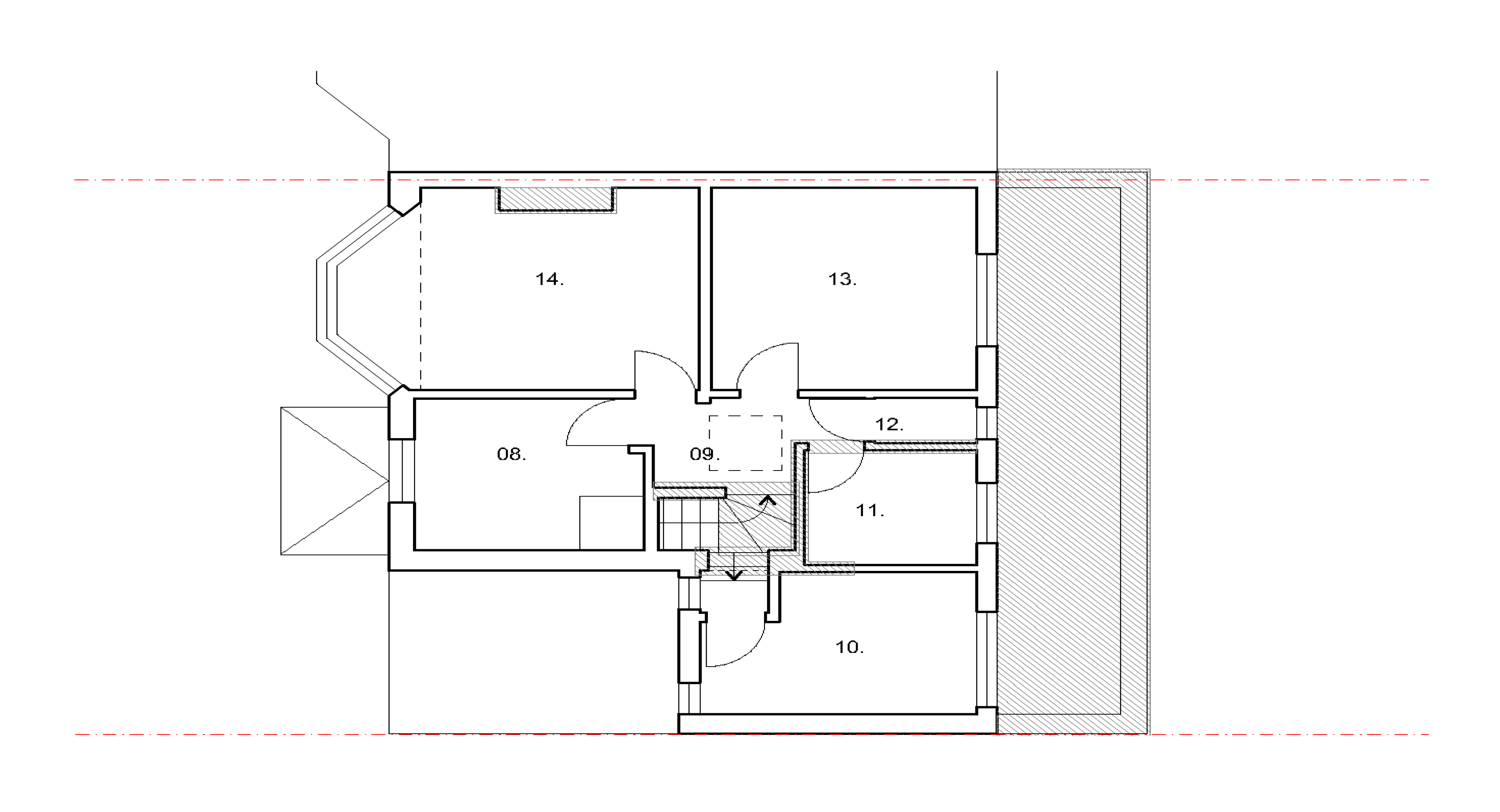
Our clients approached us with a vision to transform their newly purchased semi-detached house in North London. Having previously lived in a central London apartment, this move marked a significant transition for the family—a shift to a spacious suburban home with a garden. The house had been extended in the past, but its layout was inefficient, and it required modernisation and upgrading. The brief we were given was to extend further into the garden, convert the loft, create a more functional internal layout, and significantly enhance the home’s energy efficiency.
A fundamental aspect of the renovation was reducing the house’s long-term environmental impact. To achieve this, we prioritised upgrading the external fabric to surpass modern insulation standards and incorporated sustainable technologies to improve energy efficiency. The existing single-skin blockwork extension was repurposed and extended, upgraded with an insulated cavity, and finished with external cork cladding to provide a high-performance and sustainable solution. An air-source heat pump was installed to supply all heating and hot water needs, working in combination with underfloor heating to ensure warmth while minimising reliance on fossil fuels. Additionally, a four-metre-wide triple-glazed rooflight was installed above the northeast-facing extension, providing natural daylight and maintaining a bright atmosphere throughout the day.



















