House with an Angled Extension

A home should feel effortless. This ground and first-floor rear extension, internal reconfiguration and refurbishment turned a semi-detached house into a place of gathering, comfort, and connection.
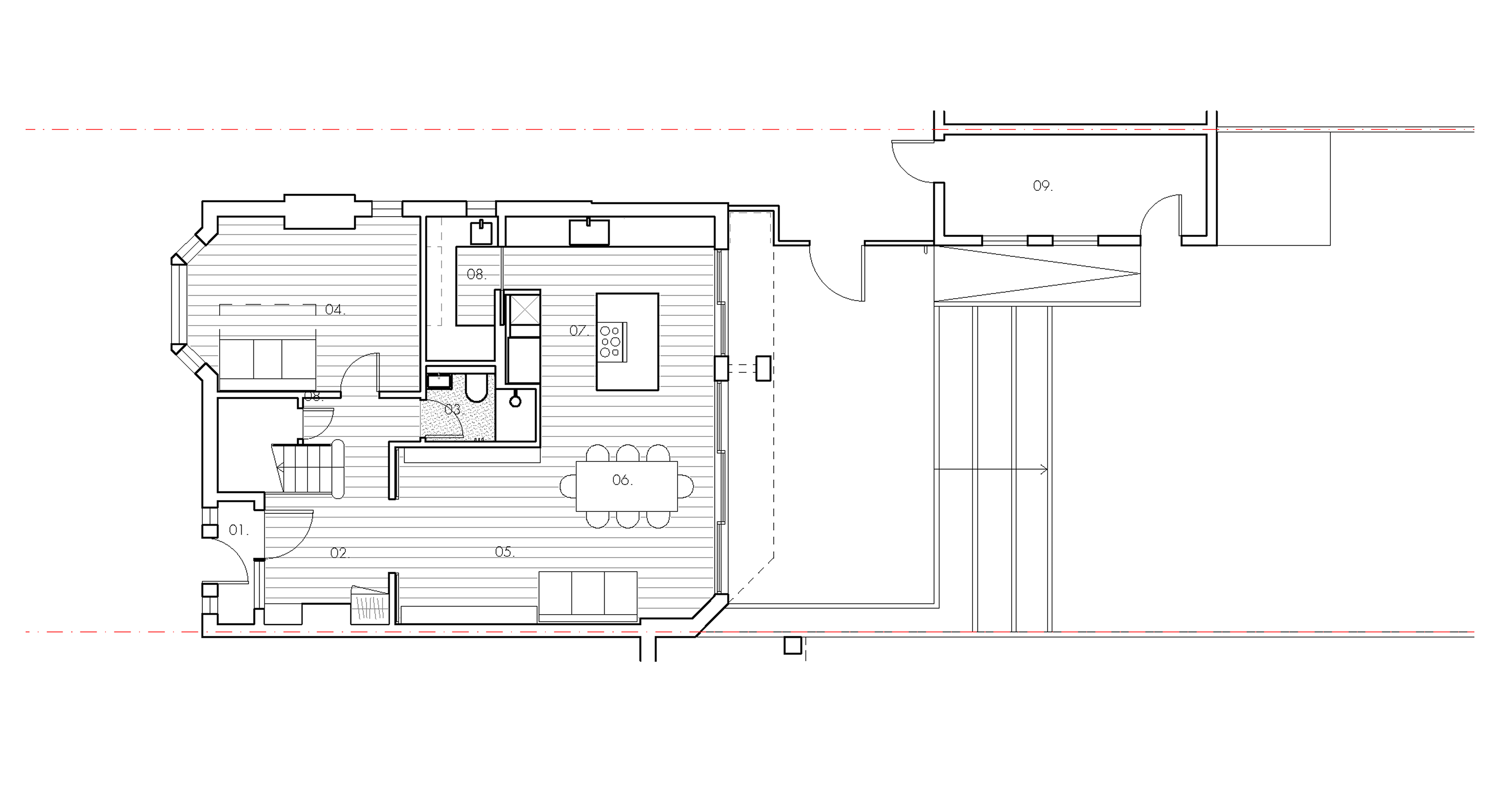
The once-separate kitchen and dining areas are now the heart of the home, for family gatherings big and small. Full-height sliding doors frame views of the lush garden, creating a seamless connection to nature: an ideal setting for an avid birdwatcher to enjoy year-round.


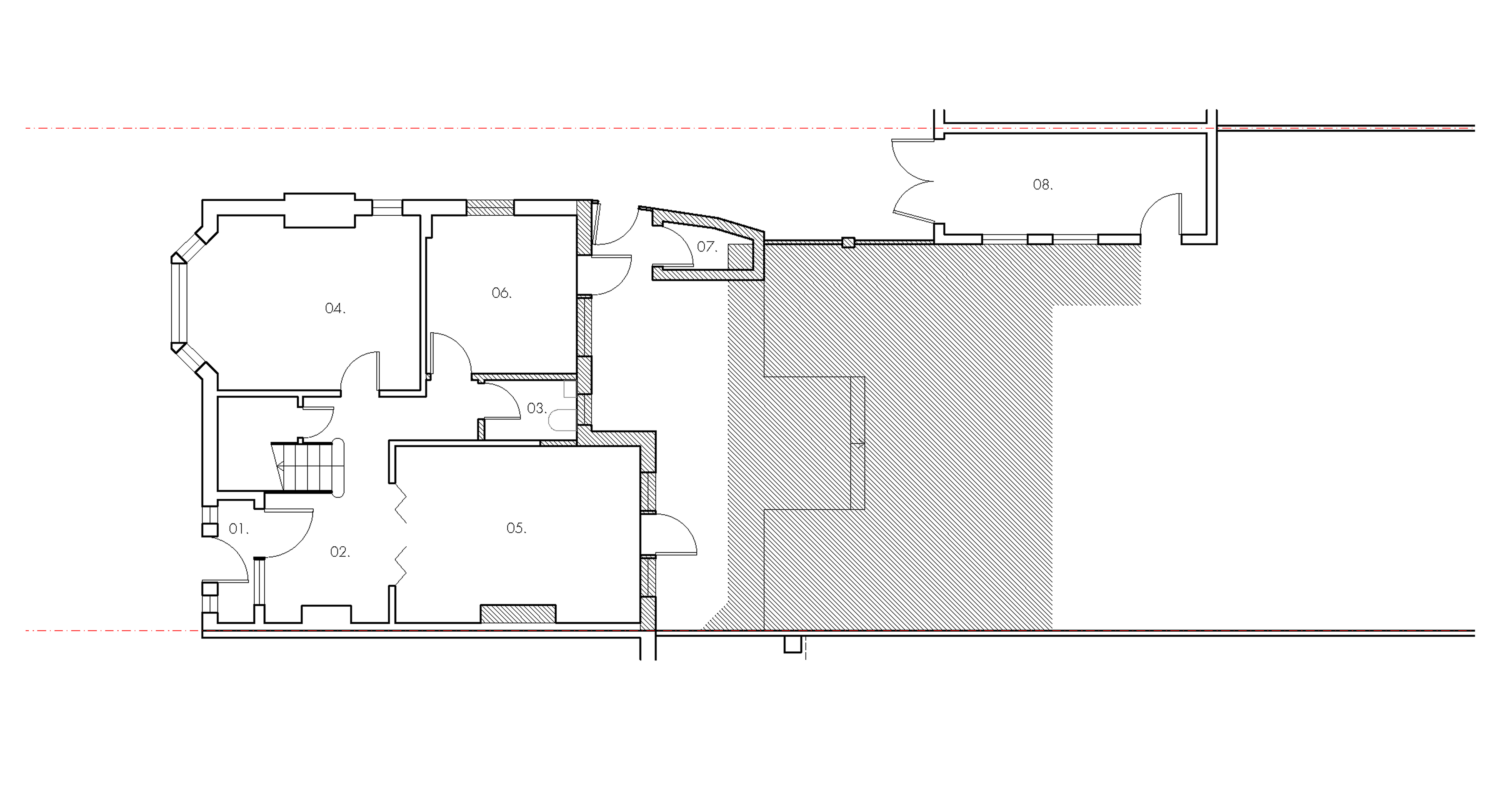
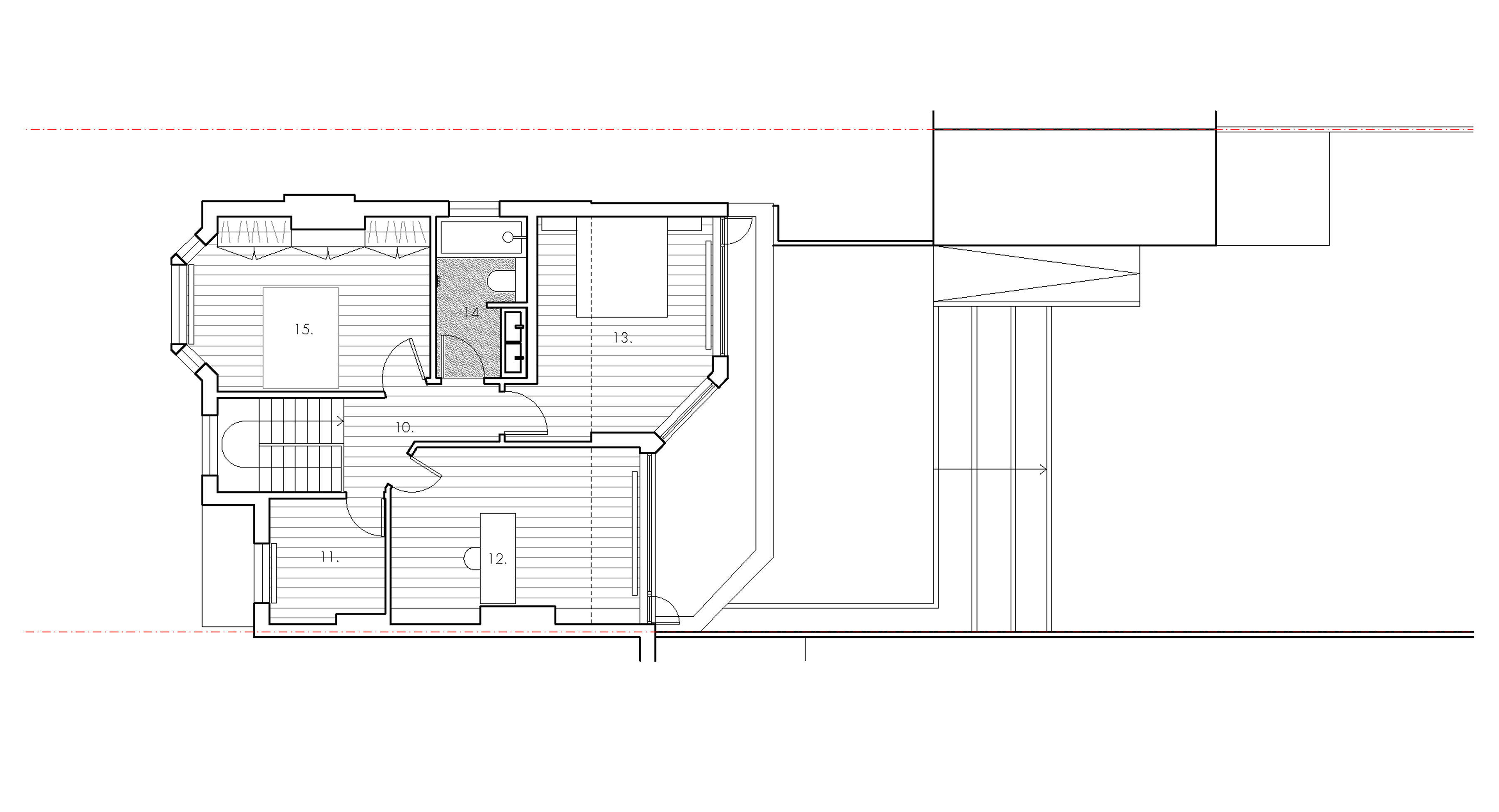
The extension’s angled form, initially a planning necessity, was embraced as a defining architectural feature. This geometry is echoed on the first floor, adding depth to the façade. Inside, repositioned walls and doorways improve flow, while a groundfloor canopy reduces solar gain, ensuring year-round comfort.


We were approached by the clients to design their forever home in their newly purchased semi-detached house in North London. The project consists of a two-storey rear extension and a full internal reconfiguration and refurbishment to enhances the home’s functionality, connection to the garden, and long-term adaptability.
To establish a strong connection with the rear garden, full-height sliding doors were introduced, and the garden level was adjusted to be flush with the interior, for barrier-free access. The level of the new garden gradually inclines to avoid the need for steps, improving accessibility and creating a continuous surface extending out from the ground floor. The new glass doors frame views of the garden and the park beyond and brings in ample natural light. A canopy extends above the glass doors to prevent overheating in the summer months. Ventilation and daylight were prioritised to support the occupants’ well-being.
















